Telefon :
Büro Möhnesee-Körbecke :
Hauptstraße 25
Büro Möhnesee-Günne :
Augustin-Schulte-Weg 3
Email :
info@groegerhaus.de www.groegerhaus.de    
Immobilie zum Verkauf

Viel Raum für Ihre Ideen

unter einem Dach in Warstein - Suttrop

1.108 m² Grundstück • 219.000 EUR Kaufpreis

DATEN IM ÜBERBLICK

ImmoNr

GR_081

Objektart

Haus

Objekttyp

Einfamilienhaus

Nutzungsart

Wohnen

Vermarktungsart

Kauf

PLZ

59581

Ort

Warstein – Suttrop

Wohnfläche

ca. 164,0 m²

Zimmer 

6

Schlafzimmer

3

Badezimmer

2,5

Balkon / Terrasse 

3

Heizungsart 

Gaszentralheizung

Energieausweis 

liegt zur Besichtigung vor

Zustand 

Renovierungsbedürftig

Verfügbarkeit

Sofort

Kaufpreis

219.000,00 EUR

Außenprovision

3,57 % inkl. MwSt.

KURZ & KNAPP

Wer ländliche Weite, viel Platz und unendliche Nutzungsmöglichkeiten schätzt, findet in diesem charmanten Wohnhaus in Warstein-Suttrop ein Zuhause mit Charakter und Geschichte. Auf einem ca. 1.108 m² großen, von Wiesen und Feldern umgebenen Grundstück, verbindet das Haus zeitlose, massive Substanz mit individuellem Gestaltungspotenzial – ideal für Familien, Ruhesuchende oder kreative Köpfe mit Vision für ein schönes Zuhause.

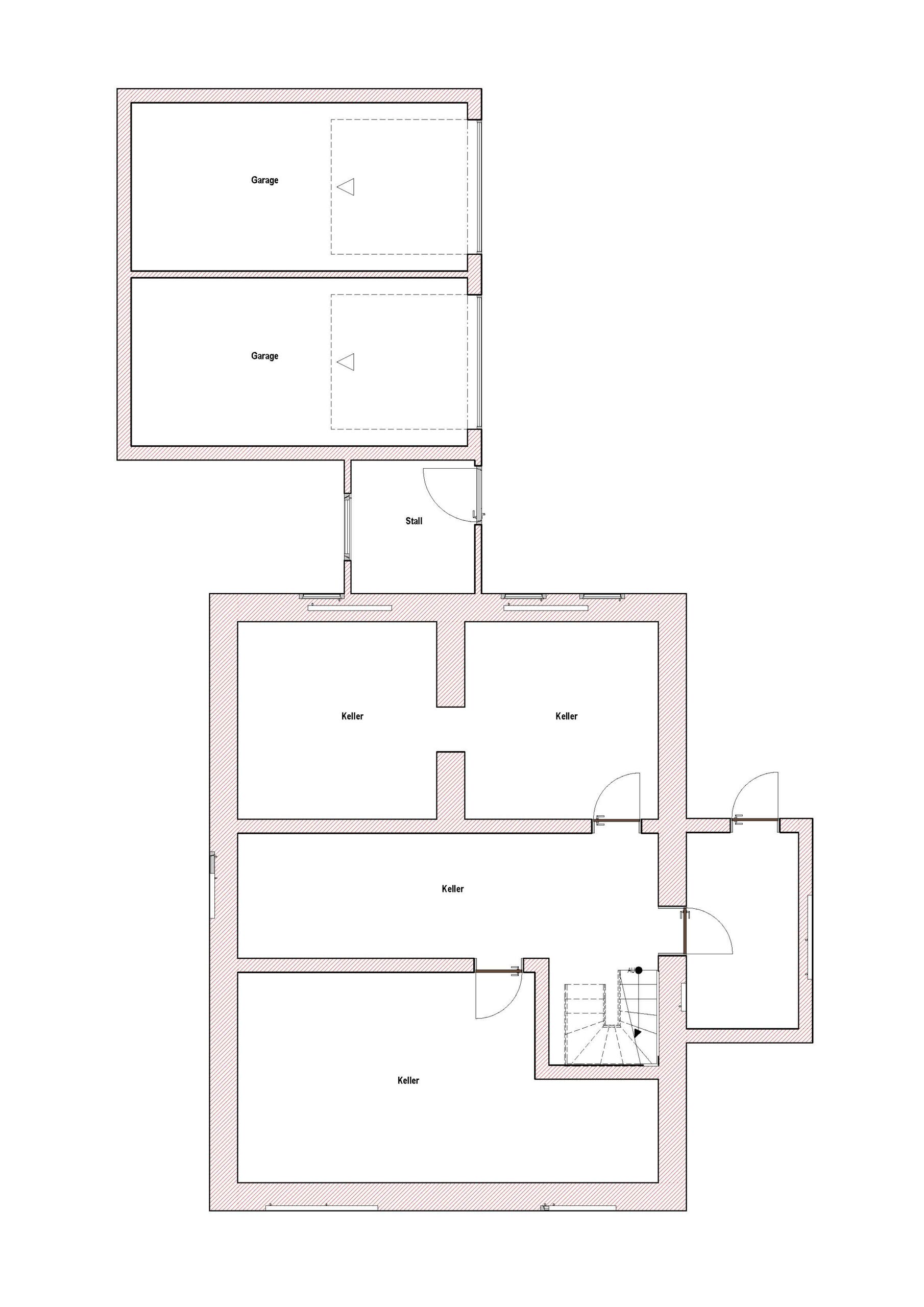
Das freistehende Wohnhaus wurde 1949 in solider Bauweise errichtet und 1956 um einen Anbau und 2 Garagen erweitert. Heute präsentiert es sich mit einer Wohnfläche von ca. 164 m² auf zwei Etagen sowie einem zu Wohnzwecken ausgebauten Dachgeschoss, das zusätzlichen Wohnraum schafft.
Die Nutzung als Einfamilienhaus ist ebenso denkbar wie eine Aufteilung in mehrere Wohneinheiten nach entsprechender Genehmigung.

Das Haus ist zudem voll unterkellert und bietet hier zusätzliche Fläche für Hobby, Vorräte oder Homeoffice. Zwei angrenzende Garagen, drei Außenstellplätze und eine praktische Zufahrt entlang des Eingangs sorgen für Komfort im Alltag.

Besonders hervorzuheben ist hier die Option, das Objekt als Mehrgenerationenhaus oder zur teilweisen Vermietung zu nutzen. Vor allem für junge Familien attraktiv, so dass die monatlichen Belastungen reduziert werden können. Aktuell ist die Obergeschosswohnung vermietet, was derzeit die sofortige Eigennutzung dieser Einheit einschränkt. Eine Kündigung ist nach Eigentumsübergang mit gesetzlicher Frist möglich. Das Objekt bietet enorme Flexibilität – sei es für Familien oder Menschen mit dem Wunsch nach individueller Gestaltung.

 

Lage & Grundstück

Warstein-Suttrop bietet eine gelungene Kombination aus naturnahem Wohnen und urbaner Erreichbarkeit. Die Immobilie befindet sich in einer Wohnstraße mit freiem Blick ins Grüne. Einkaufsmöglichkeiten wie Lidl, ALDI, E-Center, Netto und ein Bio-Hofladen sind innerhalb weniger Minuten erreichbar. Familien profitieren von der Nähe zu mehreren Kindergärten sowie einer Schule in der Umgebung. Auch medizinische Einrichtungen wie Hausarztpraxen, eine Apotheke und eine Klinik befinden sich im nahen Umkreis. Für den täglichen Ausgleich sorgen Cafés, Restaurants und Freizeitangebote in fußläufiger Distanz. Die Anbindung an den öffentlichen Nahverkehr ist durch eine Bushaltestelle in nur 250 Metern Entfernung gegeben, während der Bahnhof Bestwig und eine nahegelegene Autobahnauffahrt eine zügige Verbindung in die Region ermöglichen. Die Kombination aus ländlicher Idylle, funktionaler Infrastruktur und verkehrstechnischer Erreichbarkeit macht diesen Standort besonders attraktiv.

 

Bilder

Grundrisse

Lage Grundstück

SONSTIGES

Sie möchten mehr Informationen über diese Immobilie?
Sie möchten diese Immobilie sofort besichtigen?

Rufen Sie uns einfach an oder schreiben Sie uns einfach eine E-Mail an: info@groegerhaus.de und vereinbaren Sie einen persönlichen Besichtigungstermin mit uns.

Wir freuen uns auf Ihre Nachricht und senden Ihnen selbstverständlich auch auf Wunsch ein ausführliches Exposé.

Ein Energieausweis liegt vor.

Sonstiges:

Die dargestellten Grundrisse und Maßketten sind skizziert und beschreiben die Realität nur “ungefähr”.

Der Maklervertrag mit uns kommt durch die Inanspruchnahme unserer Maklertätigkeit oder durch die schriftliche Vereinbarung des Objekt Exposees zustande.

Die Courtage in Höhe von 3,57 % des Kaufpreises inkl. der gesetzl. Mehrwertsteuer ist bei notarieller Beurkundung fällig und zu diesem Zeitpunkt nach Rechnungsstellung vom Käufer und Verkäufer an uns, der Gröger Immobilien GmbH, zu entrichten.

Alle Angaben stammen aus Informationen, die uns vom Verkäufer zur Verfügung gestellt wurden. Für diese, von Dritten stammende Informationen übernehmen wir keine Haftung. Das Angebot ist ausschließlich für Sie bestimmt und darf nicht an Dritte weitergegeben werden. Eine Weitergabe verpflichtet zur Zahlung von Schadenersatz, falls eine Dritter dadurch zum Vertragsabschluss mit unserem Auftraggeber kommt.

Irrtum bzw. Auslassungen können nicht ausgeschlossen werden. Ein Zwischenverkauf bleibt vorbehalten.

Ihre Gröger Immobilien GmbH

Klaudia Gröger